Introducción
La erección de este rompedor edificio, insólito por el cuándo y el dónde, fue resultado de una coincidencia triple.
En primer lugar, la encomienda pastoral, fechada en 1954, por parte del poderoso obispo Almarcha, de la custodia del Santuario a los Dominicos, complementada con la implantación de un convento y un colegio seminario menor.
Desde la Segunda Guerra Mundial, esa orden religiosa había emprendido una renovación de la arquitectura religiosa, para la que contrató a figuras destacadísimas como Le Corbusier, Louis Kahn, u Óscar Niemeyer, junto con una nómina menos conocida (R. Schwarz, H. Matisse, P. Pinsard, etc.) pero, en todo caso, también adscrita a los cánones de la vanguardia
En segundo término, el ingreso ese mismo año de Francisco Coello de Portugal en la Orden de Predicadores poco después de obtener el título de arquitecto.
Por último, el pródigo mecenazgo del magnate leonés Pablo Díez Fernández (1884-1972), cuya adolescencia transcurrió en el seminario dominico de Corias (Cangas de Narcea), antes de emigrar a México donde amasó una fortuna inmensa a partir de la Cervecería Modelo, fabricante de la marca Corona o Coronita, según donde se consuma.
Historia
La advocación de la Virgen del Camino se remonta a los comienzos del siglo XVI, con la típica aparición al pastor de turno, y la consiguiente construcción de una ermita en el lugar donde, según la tradición, cayó la piedra lanzada por la Madre de Dios con la honda del susodicho, casualmente al pie del itinerario francés del Camino de Santiago.
Este modesto templo se demolió el año 1644 en favor de un santuario con mayores pretensiones y que resultó efímero pues, por causa de un derrumbe, 18 años después fue sustituido por el que campaba a mediados del siglo XX, si bien es verdad que incluso la segunda de sus torres no llegó a levantarse hasta después de la Guerra Civil.
Alrededor de 1953, el obispo Almarcha, los Dominicos y Pablo Díez tomaron la decisión conjunta de continuar esa tradición de renovación periódica, sin dejar rastro del antecedente, medida que hoy día resultaría de todo punto imposible por limitaciones legales y el activismo conservacionista. Con toda seguridad, en esa disyuntiva entre un mediocre edificio antiguo y un sustituto espléndido, la sociedad actual se decantaría por el primero.
Inicialmente se encargó el proyecto al arquitecto diocesano Juan Torbado Franco que, por lo visto, planteó un diseño que no convenció a los Dominicos y, por extensión, tampoco a Pablo Díez.
Con el apoyo del mecenas, la Orden propuso como alternativa al recién profeso Fray Coello de Portugal que, paradójicamente, había dado ese paso con la convicción de que suponía el abandono del ejercicio de la arquitectura.
Como el que paga, manda, el asunto concluyó con el desenlace previsible. No debió gustarle a Torbado la decisión final pues a partir de entonces manifestó su oposición al derribo del santuario del siglo XVIII en la Comisión Provincial de Bellas Artes. Tal postura no suscitó muchas adhesiones ante la lluvia de pesos mejicanos que se avecinaba, coincidiendo con un período no muy boyante de la sociedad española, en los estertores de la fase autárquica.
Descripción y análisis
Para comprender el santuario proyectado por Fray Coello hay que enmarcarlo, obligatoriamente, en el movimiento impulsado por los Dominicos a favor de la renovación del arte sacro, arquitectura incluida, que en España se plasmó por escrito a través de revista A.R.A. (Arte Religioso Actual). Persiguiendo un compromiso con la sociedad moderna, agotada por la convulsa historia de la primera mitad del siglo XX, en la Europa de la reconstrucción posbélica surge un decálogo para las nuevas iglesias basado en los principios de pobreza, autenticidad, sencillez y orden.
Este enfoque sintonizaba perfectamente con la contención ornamental y sinceridad constructiva defendida, de un modo más o menos consistente, por los ideólogos del llamado “movimiento moderno”. Así pues, la confluencia estaba servida. Por añadidura, Fray Coello no precisaba ningún adoctrinamiento específico porque había viajado por Alemania e Italia para conocer de primera mano la nueva arquitectura religiosa.
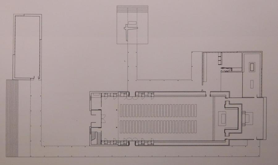
Tipológicamente, se trata de una iglesia de nave única, planta rectangular y oblonga (50 x 16 m), con el acceso principal a los pies, por debajo del coro. Este núcleo se envuelve con un cuerpo auxiliar, adosado a la cabecera, que alberga el camarín, la sala del tesoro y la sacristía, y sendas marquesinas, una por cada lado. Con traza en U, la oriental conforma una especie de medio claustro, y se remata con una torre-campanario y un altar para celebraciones al aire libre. Por su parte, la occidental, en L, se prolonga hacia el sur para delimitar, junto con un pequeño cuerpo de recepción, un atrio al que se accede subiendo una escalinata.
Externamente el conjunto se articula mediante la yuxtaposición de volúmenes elementales, simples paralelepípedos, entre los que destaca por su esbeltez y textura rugosa, obtenida mediante una fábrica de mampostería de lajas, el cuerpo que sirve de soporte al retablo barroco, conservado exactamente en la misma ubicación que tenía dentro del santuario anterior. Por encima sobrevuela el esbelto campanario con una altura de ambición territorial, visible desde muy lejos.
Dentro, el espacio está enmarcado por dos planos, suelo y techo, este último ligeramente ascendente hacia el altar, que comparten el mismo acabado de tarima de madera oscura. En el perímetro, un zócalo forrado con listones de madera ciñe el ámbito de los fieles y camufla los confesionarios, insertos en el espesor del muro. Esta disposición focaliza totalmente la atención hacia el altar, respaldado por el retablo, envuelto a su vez con la misma mampostería de lajas del exterior, que resuelve muy felizmente la inserción de un elemento tan ajeno estéticamente. En el extremo opuesto, el coro alto, de fondo muy generoso, tiene el suelo inclinado, para mejorar la visibilidad, con un forjado que va afilándose para transmitir una sensación de gracilidad.
La iluminación natural es tenue, con tres fuentes muy diferentes, una por cada lado, renunciando curiosamente a la más homogénea, de norte. El retablo y el altar cuentan con un lucernario que emerge sobre la cubierta de la nave; el paramento sur está horadado por huecos abocinados, dispuestos al tresbolillo, y cerrados con vidrios monocromos de tono acaramelado; finalmente, en el fondo del coro, mirando a poniente, una gran vidriera de Rafols Casamada.
Las artes plásticas, principalmente la escultura, juegan un papel esencial no solo en la ambientación, sino en la configuración general del edificio. En una entrevista de 1997, Fray Coello declaraba literalmente: “Cuando estábamos construyendo el Santuario de la Virgen del Camino se nos criticó que la obra era pobre; yo pensé que la solución no pasaba por llenar aquello de mármoles... propuse enriquecerla con obras de arte; y contacté con Subirach”. A la postre, la participación de Subirach fue determinante, al menos en la fachada principal, con la colocación sobre la entrada de un monumental apostolado, escoltando a la Virgen, con piezas de bronce que levantan 6 metros de altura. También son de su autoría las cuatro puertas del mismo material y distintos elementos del interior (sagrario, crucifijos, etc.).
En suma, como pretendían sus promotores y el arquitecto, la excelencia del templo no se cifró en la profusión decorativa ni el exhibicionismo formal, sino en la contención estilística, el uso esmerado de materiales ordinarios y el complemento de elementos artísticos vanguardistas. De hecho, constructivamente, el edificio es absolutamente convencional. Por ejemplo, la estructura de la cubierta se compone de vigas trianguladas de perfiles de acero, no muy diferentes de las empleadas en las naves industriales.
Hay quien pone algún pero, por deficiencias en el tratamiento de la proporción, con el argumento de que “los apóstoles de Subirats aportan una escala que no puede secundar el edificio, introduciendo una sensación de extrañamiento que sólo se apaga en el interior”. Si así fuera -habría que discutirlo- no por ello el Santuario dejaría de ocupar un puesto en el podio de los más importantes proyectos de arquitectura en la provincia de León durante el siglo XX.
Bibliografía
E. DELGADO: “La Orden dominica y las artes. Conversaciones con el Padre Coello de Portugal, O.P., Arquitectura nº 311, Colegio Oficial de Arquitectos de Madrid, Madrid, 1997, pp. 32-34.
E. FERNÁNDEZ-COVIÁN: “Fray Coello de Portugal y el debate sobre la pobreza en la arquitectura religiosa durante la segunda mitad del siglo XX”, Arquiteturarevista Vol. 7 n. 2, 2011, pp. 112-125.
F. J. GONZÁLEZ PÉREZ: “La Virgen del Camino”, Arquitectura moderna en Asturias, Galicia, Castilla y León. Ortodoxia, márgenes y transgresiones (C. García Braña; F. Agrasar Quiroga Eds), Colegios Oficiales de Arquitectos de Asturias, de Castilla y León Este, de Galicia y de León, 1998, pp. 248-251.





