Introducción
Este imponente palacio representa no sólo una exhibición del poderío de su promotor, sino también de los conceptos ideológicos renacentistas, entre los que destaca el culto a la individualidad y el deseo de diferenciación en el marco de una sociedad estamental, jerarquizada socialmente.
Desde el punto de vista arquitectónico tal propósito se hace patente mediante una fachada monumental y el aislamiento del volumen, separándolo del resto del caserío. El edificio no se integra mansamente en la trama urbana sino que sucede al revés: es el entorno el que debe adaptarse a una iniciativa cuya génesis resulta muy explícita de la ambición subyacente.
En 1559, Pedro de Guzmán solicita autorización al Consistorio para derribar parte de la cerca, un pedazo de un cubo y la muralla vieja. La autorización municipal hace mención a que la construcción “en aquel sitio es en gran ornato y autoridad de esta dicha ciudad”. Pero esta operación no era suficiente. El encaje de un inmueble concebido bajo los principios de un riguroso orden geométrico requería más transformaciones. Para corregir la irregularidad de las calles, se plantea la necesidad de derribar las alas E y S de la antigua casa señorial y rectificar las líneas de fachada, como queda de manifiesto en un documento de julio de 1566 que a su vez deja constancia de la participación de Rodrigo Gil de Hontañón.
Aún así, quedaba todavía sin resolver el problema de la visibilidad de la fachada principal, de poniente, que por su magnificencia y ornato precisaba un alto grado de notoriedad.
Ya al comienzo de las obras, Ramiro de Guzmán había entablado varios pleitos contra los propietarios de casas vecinas que entorpecían el aislamiento del Palacio. Años más tarde, en 1586 y 1587, Juana de Guzmán consigue el derribo de varias casas contiguas por el lado noroeste, aunque en este caso emplea medios menos hostiles, puesto que las adquiere. Complementariamente, mediante un convenio con el Ayuntamiento, se asegura de que esas parcelas desaparezcan como tales para convertirse en un gran espacio público delante del palacio.
Esta cuestión volvió a suscitarse tres siglos después con la construcción de la casa Botines, a la que, sin demasiado éxito, se opuso la Diputación Provincial. Lo cierto es que, a día de hoy, la fachada de poniente no se ve completa frontalmente, rasgo que no merece necesariamente un juicio negativo.
El aislamiento del edificio se consiguió en 1975, cuatro siglos después del comienzo de su construcción.
Historia
La fecha que generalmente acompaña las reseñas de todo edificio antiguo no es sino la del comienzo de una larga y procelosa historia. Cuando se data en el siglo XVI, quiere decirse del “XVI y siglos posteriores”.
El palacio de los Guzmanes comenzó a erigirse en la segunda mitad del siglo XVI (1558) para alcanzar un estado completo o íntegro cuatrocientos veinticinco años después.
La traza general de la planta y la fachada principal llevan la firma de Rodrigo Gil de Hontañón. En esta última se aprecian recursos compositivos, especialmente la galería de la planta tercera, con una larga fila de huecos, que ya había desarrollado en proyectos anteriores como el Palacio de Monterrey y la casa de la Salina en Salamanca, o la Universidad de Alcalá de Henares.
Con Gil de Hontañón trabajó en este edificio un aventajado ayudante, Juan de Ribero Rada, que acabó dirigiendo la construcción de la parte del edificio con fachada a la calle Ancha, distinguible por su carácter más severo, acorde con el clasicismo adusto que constituye su marca de la casa.
El palacio fue adquirido por la Diputación Provincial en 1882 a los condes de Peñaranda de Bracamonte con el propósito de adecuarlo como sede de la institución, aunque en una primera fase también albergó el Gobierno Civil, las delegaciones de los Ministerios de Hacienda y de Fomento, y el almacén de efectos estancados, que ocupaba las arquerías del claustro.
La remodelación comenzó por el salón de sesiones, cuyo proyecto se encargó, a propuesta del diputado José Mª Lázaro, al arquitecto Juan Bautista Lázaro, a la sazón su hermano, que diseñó una decoración a base de empanelados de madera y una cornisa decorada con los escudos de los partidos judiciales que disimula un suplemento añadido para mejorar el apoyo del entrevigado del techo. Este encargo desató una intensa actividad por parte de Lázaro, pues al año siguiente redacta el Pliego de Condiciones de los tapices de la sala, un proyecto complementario de amueblamiento, calefacción, alumbrado y arreglo de las dependencias adjuntas, y otro de acondicionamiento general del edificio que incluía la demolición del ala norte, afectando un fragmento de la muralla romana que entonces se entroncaba con la misma. Esta intervención se aborda bajo unas premisas muy respetuosas de “no reparar bajo ningún pretexto más que aquello que ofreciese peligro de ruina, reconstruyendo y restableciendo con la posible fidelidad y donde subsisten datos para ello las antiguas disposiciones”, en contraste con los expeditivos métodos que en esa misma época aplicaba Demetrio de los Ríos en la restauración de la Catedral.
También interviene en el Palacio el arquitecto provincial Blanch y Pons (1888-1890). En 1917 Manuel de Cárdenas proyecta la elevación de los torreones y una nueva cornisa sobre la galería corrida de la fachada principal tal como, a su entender, lo haría Gil de Hontañón. En 1957 Juan Torbado Franco dirige varias obras de reparación.
Hubo que esperar hasta 1973-1977 para rematar lo iniciado casi un siglo antes. En esa fecha, bajo la dirección del arquitecto provincial Felipe Moreno Medrano, se construyeron en su totalidad las alas norte y este, con frente a las calles del Cid y Pilotos Regueral, a la vez que se levantó el piso superior de los torreones que rematan la fachada principal. Numerosas fotografías atestiguan su estado previo, achaparrados y cubiertos con tejados informes, de aire indiscutiblemente provisional, resultado de una demolición parcial acometida en 1840.
Descripción y análisis
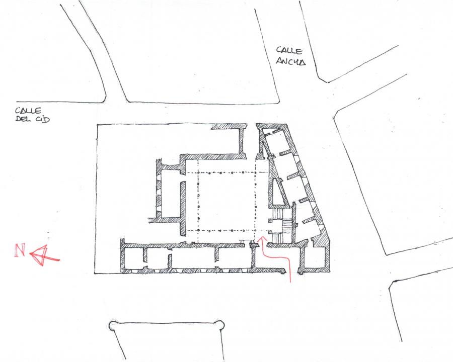
La planta, compacta y con una superficie de 2.430 m2, está muy hábilmente resuelta. Especialmente la sintaxis entre una parcela de forma trapezoidal -el lado de la calle Ancha es oblicuo- y un esquema ortogonal compuesto de patio central cuadrado (15,5 m de lado) y anillo concéntrico que lo envuelve. Esta discordancia se aprovecha para embutir la escalera, elemento muy significado en la arquitectura palaciega, en el resquicio triangular entre uno y otro.
La fachada oficial tiene una longitud de 59 m, proporción oblonga y composición apaisada, estratificada en cuatro pisos progresivamente menos macizos que se acentúa con las líneas de imposta, coincidentes con los forjados, y una poderosa cornisa. A cada piso corresponde un tipo de hueco: ventanucos (semisótano), ventanales enrejados (planta baja), balcones (planta noble) y galería corrida de ventanas en arco (planta 2ª).
A su vez, la puerta principal no está en el centro del alzado, sino que se desplaza hacia el sur para quedar alineada con el torreón correspondiente, definiendo un eje de simetría secundario en conjunto con las dos columnas de vanos que la flanquean. Esta disposición, no muy ortodoxa respecto de los cánones renacentistas, casa muy bien con el hecho de que la fachada no se vea íntegra frontalmente, y también con la alineación oblicua de la Casa Botines, levantada tres siglos después, que invita a una contemplación dinámica, en escorzo, a la vez que enriquece el espacio urbano que tiene delante.
Por otra parte, la orientación de poniente potencia la monumentalidad de la fachada, pues la luz rasante de la tarde, que reduce las sombras proyectadas, resalta la unidad del conjunto y tiñe la piedra de Boñar de un tono todavía más dorado.
La clara voluntad de notoriedad que animó el proyecto no implica una renuncia de adaptación al contexto. Así, por ejemplo, las alas que miran hacia la ciudad consolidada (N, E y S) tienen dos plantas de altura -los torreones, tres- mientras que la fachada principal y los torreones asociados levantan una más de acuerdo con su posición conspicua que ha de afrontar la visión desde perspectivas muy alejadas. La continuidad entre los lados se consigue con las impostas, que al nivel del techo de la planta noble se convierten en cornisas de las fachadas bajas.
Volviendo a la planta, la posición descentrada de la puerta principal genera un acceso en recodo, más medieval que renacentista, a través de un zaguán desde el que se desemboca en una esquina del patio. Este esquema, menos solemne y más discreto que el axial clásico, ofrece una muy atractiva visión diagonal del patio. El itinerario se completa con la escalera, también en el ángulo, de tres tramos y ojo central, que luce una refinada factura, constructiva y decorativamente.
La distribución interna del edificio que corresponde a las dependencias originales obedece a la premisa básica de convivencia de dos esferas diferentes, pública y privada. Un mismo techo alberga la sede institucional de un linaje de la nobleza y la residencia doméstica de la familia que lo encarna.
La zona perteneciente a la ampliación del siglo XX no deja de ser un conjunto de dependencias de uso administrativo con un ropaje ligeramente historicista.
Bibliografía
E. ALGORRI GARCÍA; R. CAÑAS DEL RÍO; F. J. GONZÁLEZ PÉREZ: León. Casco Antiguo y Ensanche. Guía de arquitectura, Colegio Oficial de Arquitectos de León, León, 2000, pp. 50-53.
J. DÍEZ GARCÍA-OLALLA; "Los proyectos de Juan Bautista Lázaro para el palacio de los Guzmanes", De arte, 12, Departamento de Patrimonio Artístico y Documental de la Universidad de León. León, 2013, pp. 217-232.
Mª D. CAMPOS SÁNCHEZ-BORDONA: "Las transformaciones de la arquitectura señorial del renacimiento español, como reflejo del devenir histórico y del debate de las teorías restauradoras. El ejemplo del palacio de los Guzmanes de León", De arte, 6, Departamento de Patrimonio Artístico y Documental de la Universidad de León. León, 2007, pp. 167-194.
Arquitectura nº 74, Colegio Oficial de Arquitectos de Madrid, Madrid, 1948, p. 50 (Dibujo de Manuel de Cárdenas)
Otros datos
Intervenciones posteriores:
- Arquitecto: Juan Bautista Lázaro.
Intervención: Habilitación del salón de Plenos.
Fecha del proyecto: Junio de 1884.
- Arquitecto: Francisco Blanch y Pons.
Intervención: Reformas parciales.
Fecha del proyecto: 1888-1890.
- Arquitecto: Juan Torbado Franco.
Intervención: Reparaciones.
Fecha del proyecto: 1957.
- Arquitecto: Felipe Moreno Medrano.
Intervención: Remodelación integral y ampliación.
Fecha del proyecto: 1973-1977.

