Introducción
El barrio de Pinilla, bautizado oficialmente como “Barrio Nacional Sindicalista”, es el epítome del modelo urbanístico y social del primer franquismo: un satélite suburbano de vocación autárquica, formalizado con una arquitectura de resabios rurales; el hábitat para las familias trabajadoras, incontaminado por las lacras propias de la aglomeración urbana, a saber, el hacinamiento y las ideologías “disolventes”, en el léxico de la época.
Fue promovido por la Obra Sindical del Hogar (OSH), un organismo adscrito al sindicato vertical (Delegación Nacional de Sindicatos de FET y de la JONS), creado en 1936, con el propósito de establecer una política de vivienda acorde con los principios ideológicos del bando insurrecto en su rama falangista, principalmente.
La construcción pública de vivienda, que no la construcción de vivienda pública, perseguía tres objetivos: la reactivación de la economía y la atenuación del paro mediante la intervención del Estado, el fomento de la tenencia en propiedad como fórmula para afianzar el conservadurismo ideológico -exitosa estrategia que ha marcado el devenir de la sociedad española-, y la recompensa a los afines al Régimen.
Historia
La iniciativa se remonta al mandato como gobernador civil (abril 1940 - agosto 1941) del expeditivo falangista zamorano Carlos Pinilla Turiño (1911-1991), “camisa vieja” vinculado a José Antonio Girón que, según parece, ejerció el cargo con mano de hierro y escasos escrúpulos.
A partir del trazado inicial, firmado conjuntamente en 1942 por cuatro arquitectos locales (Cañas del Río, Aparicio Guisasola; Moreno Medrano y Barrenechea Sánchez), hubo que esperar 30 años hasta que el barrio se completara en una sucesión de cinco fases, las tres primeras con tipología de vivienda unifamiliar y las dos últimas en bloques de vivienda colectiva y baja altura.
Los sucesivos proyectos de edificación recayeron exclusivamente en Ramón Cañas del Río, arquitecto asesor de la OSH y, ya al final, en su hijo Ramón Cañas Represa.
Descripción y análisis
El barrio abarca una superficie de 26,7 Ha, aproximadamente la mitad del Ensanche, con planta en forma de gota puntiaguda, como un icono de señalización. Inicialmente se concibió según el concepto de ciudad jardín de baja densidad (20 viviendas/Ha), con parcelas generosas, en torno a 400 m2. Estos parámetros fueron ajustándose progresivamente durante las sucesivas fases, aumentando la densidad, hasta concluir con la erección del gigantesco edificio de viviendas conocido como “La Casona”, que emerge como un paquebote sobre el caserío circundante.
Ya sea de manera deliberada o causal, pero en todo caso paradójica, el perímetro y la disposición de la columna vertebral del barrio guardan notables concomitancias con el trazado de la Siedlung “Bad Durremberg” de Leipzig (Alemania) proyectada en el período de entreguerras por el arquitecto Alexander Klein, según los principios del racionalismo, denostado por nazis y falangistas como expresión del cosmopolitismo judeo-marxista.
En el proyecto inicial, ese paquete axial de equipamientos públicos incluía iglesia, casa rectoral y centro de Acción Católica, casa sindical, correos y telégrafos, sala de espectáculos, comercio, mercado, centro sanitario, cooperativa, campo de deportes y un jardín. La realidad fue otra, bastante menos ambiciosa, en parte porque la densidad del barrio no daba para tanto.
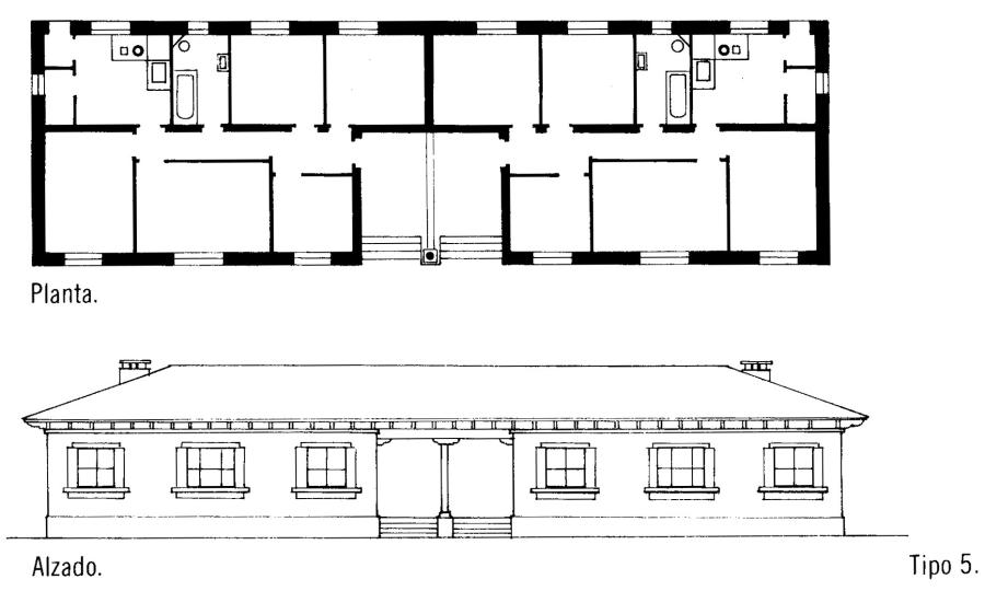
El trazado general tiende a la introspección, con calles de perspectiva cerrada, ya sea porque se curvan ligeramente o se estrellan contra frentes de fachada. En las tres primeras fases, de vivienda unifamiliar, las manzanas, mayormente alargadas, se trocean en dos filas de parcelas y, a veces, en una tercera interior, con accesos desde la calle muy forzados.
Las dos fases finales corresponden a un momento histórico completamente distinto -años 60 y 70-del que dio origen al barrio, hecho que se sustancia en una tipología diferente, de pequeños bloques de vivienda colectiva y baja altura (3 plantas) que se agrupan por manzanas dejando en el interior un racimo de espacios peatonales, actualmente ajardinados, que dotan al conjunto de un agraciado ambiente de familiaridad vecinal.
En lo que se refiere a la edificación, las viviendas unifamiliares han experimentado una evolución dispar, desde la sustitución integral a la conservación más o menos respetuosa, que da como resultado un elenco heteróclito, carente de armonía.
Mejor suerte han corrido los bloques de vivienda, particularmente los de la fase 4ª, que se han conservado razonablemente fieles al proyecto original, cuya pintoresca ordenación se ha visto reforzada con el sencillo y barato recurso de la variedad cromática de las fachadas.
Bibliografía
AA.VV.: La casa en España, Centro de Publicaciones. Secretaría General Técnica (MOPU), Madrid, 1987, ficha 54.





